北京地壇醫院國內首家成功應用Ekahau實時定位系統
摘要:上海希華通訊科技有限公司和合作伙伴北京優益天成科技有限公司成功實施北京地壇醫院GIS定位跟蹤管理系統(基于無線局域網IEEE802.11b/g的Ekahau實時定位系統),該項目是衛生部試點、國內醫療行業首家應用,可對醫院內的人員、資產醫療設備、醫療垃圾車等進行實時定位跟蹤,定位精度實際達到1-2米。北京地壇醫院GIS定位跟蹤管理系統已于2009年1月底被成功驗收。
北京地壇醫院是隸屬于北京市衛生局的三級甲等醫院,作為國內規模最大傳染病醫院的北京地壇醫院主要收治除結核病之外的35種法定傳染病,也是治療各種肝病的專科醫院,是病毒性肝炎和艾滋病專業的“國家藥品臨床研究基地”。作為北京市各種傳染病收治的指定醫院,北京地壇醫院在多次參與傳染病重大突發事件的收治及搶救工作,為控制傳染病在北京的流行做出了突出的貢獻。
為滿足醫院營運和管理的需要,醫院戰略發展的需要,以及社會服務的需要,醫院需要利用IT技術達到以下業務目的:
l 加強各類業務數據的采集、傳遞、存儲和使用管理,促進信息共享,使醫護人員、決策者、管理者能及時準確地獲取其所需信息,提高工作質量。
l 通過信息化手段減少患者之間、患者與醫護人員之間、醫務人員之間的交叉感染。
l 通過信息化手段加強醫療垃圾管理。
l 加強醫療質量過程管理,減少醫療差錯,提高醫療質量,保障醫療安全,增加病人的滿意度。
l 合理調配資源,增加資源的利用率,控制醫療過程中的物耗,減低成本。
l 加強醫院過程監控,幫助管理者和決策者實時了解醫院運行狀態,及時發現并解決問題。
一、項目概況
數字化醫院的任務之一是要實現醫院的透明化,即通過數據的透明化、業務流程的透明化、輔助流程的透明化來實現對醫院的精細化管理。WI-FI實時定位技術則是幫助醫院實現透明化的重要技術手段之一。
竣工的地壇醫院的門急診醫技樓和病房樓已經實現了覆蓋全樓宇的無線局域網絡(IEEE 802.11 b/g)。此外,醫院還部署了大量的EDA和筆記本設備,支持移動辦公和床旁服務等應用。
為了充分發揮無線局域網的功效,醫院計劃通過建立基于WI-FI技術的Ekahau實時定位系統,實現對重要的人員、設備和物品的實時追蹤和定位。
通過此項目將實現對醫院具有重要意義的追蹤應用的技術基礎,在這個技術基礎上,可以實現各種物資、人員的追蹤應用,該用將是醫院實時定位追蹤系統的重要組成部分。該應用有:
1. 醫用垃圾追蹤。監控醫療垃圾運送車的位置和運送路線,保證垃圾運送車按規劃的路線和在專用的通道中運行。
2. 急癥病人追蹤。對急診病人進行定位管理,實時追蹤病人所在的位置。
3. WI-FI移動設備追蹤。對處于工作狀態的EDA、筆記本的位置進行追蹤,從而可對相應人員的位置進行追蹤。
4. 貴重設備追蹤。對貴重的可移動設備進行定位和追蹤。
二、項目目的
北京市地壇醫院實時定位追蹤系統項目主要以Ekahau基于WI-FI的定位技術為基礎,實現對醫院相關人員(醫生、護士等)、設備(EDA、筆記本和其它設備)和物品(醫療垃圾)的動態、實時的追蹤管理,達到以下目的:
1. 規范化對醫療垃圾收集、轉運和存儲過程的管理,嚴格控制醫療垃圾的運送路線,準確記錄醫療垃圾的出入時間,防止由于醫療垃圾在運送過程中的失誤造成的嚴重后果;
2. 加強對急癥危重病人的監控和管理,提供救護過程的效率;
3. 通過WI-FI移動設備的追蹤,了解人員的分布動態情況,提高工作的調度效率;
4. 防止高貴重設備的丟失,提高設備的使用效率;
三、設計原則
1. 統一性:采用統一的技術標準,統一的系統架構;
2. 總體性:從數字化醫院的角度進行總體設計,使實時定位追蹤系統成為地壇醫院數字化模型的有機組成部分;
3. 經濟性:充分利用北京地壇醫院在無線局網絡設施上的投入,建立全院區的WI-FI實時定位追蹤系統;考慮到北京地壇醫院在主數據庫以及集成平臺上的投入,實時定位追蹤系統對數據的永久化存儲以及同其它應用系統之間的集成,最好能利用北京地壇醫院已經采購的CACHE數據庫和ENSEMBLE平臺;
4. 可擴展:隨著北京地壇醫院數字化建設的逐步深入,將有新的依賴于實時定位追蹤系統的應用需求的出現,實時定位追蹤系統能靈活地擴展,以便加入對這些應用的共性需求的支持;
5. 可伸縮性:系統要具有面向未來的良好的伸縮性能,既能滿足當前的需求,又能支持未來不斷增加的對新添設備的追蹤的需求。
四、系統設計要求
1.應用架構設計要求
實時定位追蹤系統項目的應用架構的設計需滿足以下要求:
1.1 多層的應用架構;支持BROWSER或Rich Windows 客戶
1.2 基于組件的SOA架構,應用服務功能通過Web Services技術發布成可以被第三方的應用使用的服務,或可使用XML消息傳遞數據;
1.3 具有良好的安全機制完成用戶的認證、授權和數據保密。
2.集成能力設計要求
實時定位追蹤系統需要具有與其它應用系統交換數據的能力,數據交換需要建立在醫院的統一集成平臺(ENSEMBLE)上。
3.標準的遵從
4.為了保證系統的開放性,以及集成的實現,系統需遵從以下標準:
4.1 支持UNICODE編碼
4.2 支持TCP/IP協議、HTTP、HTTPS
4.3 支持XML、 Web Service。
5.操作系統要求
采用Windows 2003操作系統作為AD服務器、CA服務器。
6.數據庫管理系統要求
6.1 面向對象的大型關系數據庫或后關系數據庫;
6.2 支持主流廠商的硬件及操作系統平臺;
6.3 支持多機多處理器;
6.4 數據庫系統具有良好的伸縮性,能在不影響數據庫正常運行的情況下更新系統,
6.5 支持主流的網絡協議(TCP/IP、IPX/SPX、NETBIOS及混合協議等);
6.6 具有支持并行操作所需的技術,包括多服務器協同技術、事務處理的完整性控制技術。
7.對WI-FI定位標簽及設備的要求
7.1 醫療垃圾容器/運輸車使用支持RSSI定位的WI-FI定位標簽;
7.2 消毒器械包容器/運送車使用支持RSSI定位的WI-FI定位標簽;
7.3 病人跟蹤使用支持RSSI定位的WI-FI定位標簽;
7.4 貴重的可移動醫療設備使用支持RSSI定位的WI-FI定位標簽;
7.5 WI-FI頻率范圍適合醫院環境;
五、系統概述
上海希華通訊科技有限公司提供的Ekahau基于無線局域網 Wi-Fi 的實時定位系統(RTLS)是業界最精確、最簡便可行、最具成本效益的 WiFi 資產和人員 跟蹤系統解決方案,Ekahau RTLS 應用于醫院,使對于醫療設備、醫生、護士、患者等都有更好的定位追蹤效果。
Ekahau RTLS 使得資產管理部門在醫院快速尋找醫療設備和提高服務效率, 使管理者減少因尋找醫療設備而浪費的時間。對必須定時進行預防性維修保養的醫療儀器提供快速的定位尋找提高服務反應。還可以對特殊病人,如傳染病患者、精神病患者等進行定位跟蹤,以便在醫院的任何角落 快速找到目標,防止傳染病的擴散和意外事故的發生。
遇到緊急情況,攜帶有 Ekahau Wi-Fi 標簽的人員可以按 下警報按鈕發送信號到監控部門尋求幫助。這可減少搜索目標人員的時間,得到更快的響應。當有帶有 Ekahau Wi-Fi 標 簽但未經授權人員進入限制區時,系統會發出信息給監控部門示警,這可有效防止不必要的意外發生,增強安全管理級別。
Ekahau 基于Wi-Fi 的專利定位技術是完全建立在軟件基礎上,能夠不斷地實時監控醫院無線網絡 Wi-Fi 覆蓋區域內的資產和人員,并實現精確定位跟蹤。使用者可以在醫院網絡上通過應用軟件或者應用程序界面來接受 RTLS 系統實時 傳送的信息,對人員進行實時定位與跟蹤管理,以提高安全性和工作流程;同時,能夠在設施之間對設備進行精確有效地定位、管理和重新部署,優化了資產的能見度,實現最大化的利用率和投資回報率。 通過實時定位跟蹤資產和人員的位置,可以為管理者提供顯著價值的相關信息,能使各種致力于追求提高反應 速度、管理水平和效益的醫院受惠。
六、系統特點
1、100%基于802.11ab/g/n標準,適用于現有任何一代任何品牌的無線網絡設施;
2、結構簡單,系統由定位標簽和軟件組成。只需利用現有無線網絡WiFi的網絡設備(AP), 不需要增加任何額外的硬件設施(如讀卡器、exciter、激勵器、天線等);
3、基于專利技術高精度算法的軟件,通過定位引擎計算rssi,定位精度在3米左右,最高能至1米;
4、運行于標準企業級服務器的單個定位引擎EPE支持園區或企業范圍部署多達20000個追蹤對象目標和每秒對六百個對象同時進行定位;
5、開放式體系結構設計,該定位引擎EPE可以無縫集成到現有的中間件,數據庫, ERP系統,工作流程及其他系統,能自動監測和報告;
6、通過HTTP / XML的應用程序編程接口和SDK (軟開發工具包),可加快利用第三方系統進行開發和整合應用軟件;
7、客戶可以通過互聯網WEB界面完成對人員或者資產的實時定位、定位歷史記錄,定位精度可以控制在樓棟、樓層或者房間三種級別;位置地圖界面提供的實時定位信息有資產位置、最后一個位置信息的時間記錄、位置移動記錄和事件管理等;
8、用戶可利用軟件在實地場所虛擬的設定出不同的區域,如可設置“禁止進入區”“報警區”以及把空間劃分為若干虛擬的格子狀房間等;
9、每個WIFI定位標簽都擁有全球唯一的編碼,和相應資產設備和人員的信息相聯,如可寫入資產名稱、型號、時間、歸屬以及人員的姓名、職務、科室部門等資料信息;
10、獨特的雙向通訊功能,視覺和報警及短信提示;
11、標簽遠程管理功能,可對WIFI定位標簽電池實時監控;
12、安裝實施靈活方便迅捷,降低成本。
七、 系統架構
Ekahau系統主要由定位引擎(EPE)、場所測量(Site Survey)、應用軟件(含Tracker、Finder、Ekahau Vision)和WIFI定位標簽等部分組成。
1.應用系統框架說明
ü 位置跟蹤軟件采用J2EE技術設計面向服務的體系結構框架;
ü 通過采用 SOA 框架,基于JAVA平臺的三層(Browser /Application Server/Database Server)應用體系結構。
ü 軟件架構于B/S三層應用體系結構之上。所有的業務都是通過用戶應用訪問層進行的,建立在綜合數據庫之上的綜合應用系統。
ü 位置跟蹤軟件的數據庫采用主流的ORCACLE、SQL Server數據庫。
ü 通過SOAP接受來自Ekahau定位系統的標簽位置信息,在位置跟蹤軟件中通過GIS圖形的方式進行展示。并且可以通過SOAP向第三方軟件提供數據傳遞和事件通告。
2.應用系統功能說明
這3個模塊是平臺的基礎模塊,負責維護GIS追蹤管理平臺的基本信息:
ü 平臺基礎信息模塊中包含:組織機構維護、用戶信息維護兩個子模塊。可以維護醫院的組織機構以及登陸系統的用戶。
ü 權限管理模塊包含:角色管理和角色授權兩個子模塊。負責定義角色,同時對系統角色訪問模塊權限的控制。
ü 系統維護管理模塊中包含:模塊鏈接管理、在線用戶、系統日志管理三個子模塊。可以管理模塊鏈接和查看在先用戶以及系統日志。日志對于安全來說,非常重要,他記錄了系統每天發生的各種各樣的事情,你可以通過他來檢查錯誤發生的原因,或者受到攻擊時攻擊者留下的痕跡。日志主要的功能有:審計和監測。他還可以實時的監測系統狀態,監測和追蹤侵入者等等。
2.2.WI-FI移動設備管理
GIS追蹤管理系統利用Ekahau定位系統讓醫院管理人員可以迅速、準確地通過WI-FI移動設備的追蹤,了解人員的分布動態情況,提高工作的調度效率。
展現種類,例如:按標簽號查詢、按貴重設備名稱查詢、按保管科室或者保管人等信息查詢;
利用此模塊醫院管理人員可以及時、準確地了解貴重設備的分布動態情況。
ü 防止高貴重設備的丟失,提高設備的使用效率,提高服務效率。
一旦發生緊急搶救和診治等情況,可以快速知道究竟在何處能立即就近找到可用的輪椅病床、手術 包、輸液泵、牽引器等醫療儀器和設備。
展現種類,例如:按標簽號查詢、按貴重設備名稱查詢、按保管科室或者保管人等信息查詢;
2.4.重要病人管理
ü 減少患者之間、患者與醫護人員之間、醫務人員之間的交叉感染。
ü 加強對急癥危重病人的監控和管理,提供救護過程的效率;
對于佩戴了標簽的患者,當發生緊急情況時,病人可以通過觸發標簽上的呼叫按鈕進行緊急呼叫。呼叫后,呼叫信息會顯示到系統中,醫護人員可以在系統中查看到呼叫信息。并且可以通過點擊信息查看當前病人所處位置,進行及時的救護和治療。
2.6.垃圾運送車管理
醫療垃圾運送監控
對垃圾車的每次運行,系統會自動記錄運行路線、運行時間,并存入系統;管理員可以通過查看歷史軌跡的功能查看日志。
垃圾運送車預警
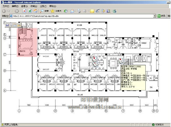
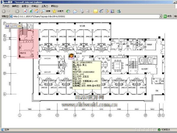
系統會實時監控垃圾車的位置,垃圾車必須在指定的運行區域內活動(如上圖粉紅色區域),如果垃圾車超出指定范圍的時候,系統會提示相應的管理員:垃圾車違規運行。
管理員登陸系統,進入【系統報警管理】-【垃圾車路徑報警管理】(如下圖)會查看到所有的違規記錄。記錄會顯示每次垃圾車超出預警區域的時間,以及再次回到預警區域的時間。
Ø 每當垃圾車進入一個節點的覆蓋區域,系統記錄經過某個節點;
Ø如果垃圾車進入非指定區域,或者從非指定區域進入,系統自動預警,垃圾車違規運行。
2.7.統計報表
系統提供強大的報表統計分析功能。利用iReport主流的開源WEB報表定制工具,可以根據客戶需求自定義各種相關的統計報表,并可以導出PDF或EXCLE文檔。
九、上海希華通訊科技有限公司
上海希華通訊科技有限公司是香港上市公司 —香港通訊集團HKC(股票代號:248)在內地的全資子公司,致力于提供系統解決方案,業務涉及通訊、計算機網絡、企業應用軟件、WIFI、RFID/AIDC等領域。
香港通訊集團HKC是Ekahau在亞太區的合作伙伴,上海希華通訊科技有限公司作為Ekahau中國大陸的唯一代理,全面負責Ekahau實時定位系統(RTLS)在中國地區的推廣和銷售,上海希華提供系統軟硬件產品、測試、安裝、客戶應用軟件的二次開發(中文版)、技術支持和培訓等工作。歡迎咨詢洽談,期待合作!
地址:上海市淮海東路45號東淮海國際大廈11層
聯系人:劉濤
手機:13816134029
電話:021-61702233-152
電郵:tliu@hkctechnology.com.cn
網址:http://www.hkctechnology.com.cn
為滿足醫院營運和管理的需要,醫院戰略發展的需要,以及社會服務的需要,醫院需要利用IT技術達到以下業務目的:
l 加強各類業務數據的采集、傳遞、存儲和使用管理,促進信息共享,使醫護人員、決策者、管理者能及時準確地獲取其所需信息,提高工作質量。
l 通過信息化手段減少患者之間、患者與醫護人員之間、醫務人員之間的交叉感染。
l 通過信息化手段加強醫療垃圾管理。
l 加強醫療質量過程管理,減少醫療差錯,提高醫療質量,保障醫療安全,增加病人的滿意度。
l 合理調配資源,增加資源的利用率,控制醫療過程中的物耗,減低成本。
l 加強醫院過程監控,幫助管理者和決策者實時了解醫院運行狀態,及時發現并解決問題。
一、項目概況
數字化醫院的任務之一是要實現醫院的透明化,即通過數據的透明化、業務流程的透明化、輔助流程的透明化來實現對醫院的精細化管理。WI-FI實時定位技術則是幫助醫院實現透明化的重要技術手段之一。
竣工的地壇醫院的門急診醫技樓和病房樓已經實現了覆蓋全樓宇的無線局域網絡(IEEE 802.11 b/g)。此外,醫院還部署了大量的EDA和筆記本設備,支持移動辦公和床旁服務等應用。
為了充分發揮無線局域網的功效,醫院計劃通過建立基于WI-FI技術的Ekahau實時定位系統,實現對重要的人員、設備和物品的實時追蹤和定位。
通過此項目將實現對醫院具有重要意義的追蹤應用的技術基礎,在這個技術基礎上,可以實現各種物資、人員的追蹤應用,該用將是醫院實時定位追蹤系統的重要組成部分。該應用有:
1. 醫用垃圾追蹤。監控醫療垃圾運送車的位置和運送路線,保證垃圾運送車按規劃的路線和在專用的通道中運行。
2. 急癥病人追蹤。對急診病人進行定位管理,實時追蹤病人所在的位置。
3. WI-FI移動設備追蹤。對處于工作狀態的EDA、筆記本的位置進行追蹤,從而可對相應人員的位置進行追蹤。
4. 貴重設備追蹤。對貴重的可移動設備進行定位和追蹤。
二、項目目的
北京市地壇醫院實時定位追蹤系統項目主要以Ekahau基于WI-FI的定位技術為基礎,實現對醫院相關人員(醫生、護士等)、設備(EDA、筆記本和其它設備)和物品(醫療垃圾)的動態、實時的追蹤管理,達到以下目的:
1. 規范化對醫療垃圾收集、轉運和存儲過程的管理,嚴格控制醫療垃圾的運送路線,準確記錄醫療垃圾的出入時間,防止由于醫療垃圾在運送過程中的失誤造成的嚴重后果;
2. 加強對急癥危重病人的監控和管理,提供救護過程的效率;
3. 通過WI-FI移動設備的追蹤,了解人員的分布動態情況,提高工作的調度效率;
4. 防止高貴重設備的丟失,提高設備的使用效率;
三、設計原則
1. 統一性:采用統一的技術標準,統一的系統架構;
2. 總體性:從數字化醫院的角度進行總體設計,使實時定位追蹤系統成為地壇醫院數字化模型的有機組成部分;
3. 經濟性:充分利用北京地壇醫院在無線局網絡設施上的投入,建立全院區的WI-FI實時定位追蹤系統;考慮到北京地壇醫院在主數據庫以及集成平臺上的投入,實時定位追蹤系統對數據的永久化存儲以及同其它應用系統之間的集成,最好能利用北京地壇醫院已經采購的CACHE數據庫和ENSEMBLE平臺;
4. 可擴展:隨著北京地壇醫院數字化建設的逐步深入,將有新的依賴于實時定位追蹤系統的應用需求的出現,實時定位追蹤系統能靈活地擴展,以便加入對這些應用的共性需求的支持;
5. 可伸縮性:系統要具有面向未來的良好的伸縮性能,既能滿足當前的需求,又能支持未來不斷增加的對新添設備的追蹤的需求。
四、系統設計要求
1.應用架構設計要求
實時定位追蹤系統項目的應用架構的設計需滿足以下要求:
1.1 多層的應用架構;支持BROWSER或Rich Windows 客戶
1.2 基于組件的SOA架構,應用服務功能通過Web Services技術發布成可以被第三方的應用使用的服務,或可使用XML消息傳遞數據;
1.3 具有良好的安全機制完成用戶的認證、授權和數據保密。
2.集成能力設計要求
實時定位追蹤系統需要具有與其它應用系統交換數據的能力,數據交換需要建立在醫院的統一集成平臺(ENSEMBLE)上。
3.標準的遵從
4.為了保證系統的開放性,以及集成的實現,系統需遵從以下標準:
4.1 支持UNICODE編碼
4.2 支持TCP/IP協議、HTTP、HTTPS
4.3 支持XML、 Web Service。
5.操作系統要求
采用Windows 2003操作系統作為AD服務器、CA服務器。
6.數據庫管理系統要求
6.1 面向對象的大型關系數據庫或后關系數據庫;
6.2 支持主流廠商的硬件及操作系統平臺;
6.3 支持多機多處理器;
6.4 數據庫系統具有良好的伸縮性,能在不影響數據庫正常運行的情況下更新系統,
6.5 支持主流的網絡協議(TCP/IP、IPX/SPX、NETBIOS及混合協議等);
6.6 具有支持并行操作所需的技術,包括多服務器協同技術、事務處理的完整性控制技術。
7.對WI-FI定位標簽及設備的要求
7.1 醫療垃圾容器/運輸車使用支持RSSI定位的WI-FI定位標簽;
7.2 消毒器械包容器/運送車使用支持RSSI定位的WI-FI定位標簽;
7.3 病人跟蹤使用支持RSSI定位的WI-FI定位標簽;
7.4 貴重的可移動醫療設備使用支持RSSI定位的WI-FI定位標簽;
7.5 WI-FI頻率范圍適合醫院環境;
五、系統概述
上海希華通訊科技有限公司提供的Ekahau基于無線局域網 Wi-Fi 的實時定位系統(RTLS)是業界最精確、最簡便可行、最具成本效益的 WiFi 資產和人員 跟蹤系統解決方案,Ekahau RTLS 應用于醫院,使對于醫療設備、醫生、護士、患者等都有更好的定位追蹤效果。
Ekahau RTLS 使得資產管理部門在醫院快速尋找醫療設備和提高服務效率, 使管理者減少因尋找醫療設備而浪費的時間。對必須定時進行預防性維修保養的醫療儀器提供快速的定位尋找提高服務反應。還可以對特殊病人,如傳染病患者、精神病患者等進行定位跟蹤,以便在醫院的任何角落 快速找到目標,防止傳染病的擴散和意外事故的發生。
遇到緊急情況,攜帶有 Ekahau Wi-Fi 標簽的人員可以按 下警報按鈕發送信號到監控部門尋求幫助。這可減少搜索目標人員的時間,得到更快的響應。當有帶有 Ekahau Wi-Fi 標 簽但未經授權人員進入限制區時,系統會發出信息給監控部門示警,這可有效防止不必要的意外發生,增強安全管理級別。
Ekahau 基于Wi-Fi 的專利定位技術是完全建立在軟件基礎上,能夠不斷地實時監控醫院無線網絡 Wi-Fi 覆蓋區域內的資產和人員,并實現精確定位跟蹤。使用者可以在醫院網絡上通過應用軟件或者應用程序界面來接受 RTLS 系統實時 傳送的信息,對人員進行實時定位與跟蹤管理,以提高安全性和工作流程;同時,能夠在設施之間對設備進行精確有效地定位、管理和重新部署,優化了資產的能見度,實現最大化的利用率和投資回報率。 通過實時定位跟蹤資產和人員的位置,可以為管理者提供顯著價值的相關信息,能使各種致力于追求提高反應 速度、管理水平和效益的醫院受惠。
六、系統特點
1、100%基于802.11ab/g/n標準,適用于現有任何一代任何品牌的無線網絡設施;
2、結構簡單,系統由定位標簽和軟件組成。只需利用現有無線網絡WiFi的網絡設備(AP), 不需要增加任何額外的硬件設施(如讀卡器、exciter、激勵器、天線等);
3、基于專利技術高精度算法的軟件,通過定位引擎計算rssi,定位精度在3米左右,最高能至1米;
4、運行于標準企業級服務器的單個定位引擎EPE支持園區或企業范圍部署多達20000個追蹤對象目標和每秒對六百個對象同時進行定位;
5、開放式體系結構設計,該定位引擎EPE可以無縫集成到現有的中間件,數據庫, ERP系統,工作流程及其他系統,能自動監測和報告;
6、通過HTTP / XML的應用程序編程接口和SDK (軟開發工具包),可加快利用第三方系統進行開發和整合應用軟件;
7、客戶可以通過互聯網WEB界面完成對人員或者資產的實時定位、定位歷史記錄,定位精度可以控制在樓棟、樓層或者房間三種級別;位置地圖界面提供的實時定位信息有資產位置、最后一個位置信息的時間記錄、位置移動記錄和事件管理等;
8、用戶可利用軟件在實地場所虛擬的設定出不同的區域,如可設置“禁止進入區”“報警區”以及把空間劃分為若干虛擬的格子狀房間等;
9、每個WIFI定位標簽都擁有全球唯一的編碼,和相應資產設備和人員的信息相聯,如可寫入資產名稱、型號、時間、歸屬以及人員的姓名、職務、科室部門等資料信息;
10、獨特的雙向通訊功能,視覺和報警及短信提示;
11、標簽遠程管理功能,可對WIFI定位標簽電池實時監控;
12、安裝實施靈活方便迅捷,降低成本。
七、 系統架構
Ekahau系統主要由定位引擎(EPE)、場所測量(Site Survey)、應用軟件(含Tracker、Finder、Ekahau Vision)和WIFI定位標簽等部分組成。

1.應用系統框架說明

ü 位置跟蹤軟件采用J2EE技術設計面向服務的體系結構框架;
ü 通過采用 SOA 框架,基于JAVA平臺的三層(Browser /Application Server/Database Server)應用體系結構。
ü 軟件架構于B/S三層應用體系結構之上。所有的業務都是通過用戶應用訪問層進行的,建立在綜合數據庫之上的綜合應用系統。
ü 位置跟蹤軟件的數據庫采用主流的ORCACLE、SQL Server數據庫。
ü 通過SOAP接受來自Ekahau定位系統的標簽位置信息,在位置跟蹤軟件中通過GIS圖形的方式進行展示。并且可以通過SOAP向第三方軟件提供數據傳遞和事件通告。
2.應用系統功能說明

這3個模塊是平臺的基礎模塊,負責維護GIS追蹤管理平臺的基本信息:
ü 平臺基礎信息模塊中包含:組織機構維護、用戶信息維護兩個子模塊。可以維護醫院的組織機構以及登陸系統的用戶。
ü 權限管理模塊包含:角色管理和角色授權兩個子模塊。負責定義角色,同時對系統角色訪問模塊權限的控制。
ü 系統維護管理模塊中包含:模塊鏈接管理、在線用戶、系統日志管理三個子模塊。可以管理模塊鏈接和查看在先用戶以及系統日志。日志對于安全來說,非常重要,他記錄了系統每天發生的各種各樣的事情,你可以通過他來檢查錯誤發生的原因,或者受到攻擊時攻擊者留下的痕跡。日志主要的功能有:審計和監測。他還可以實時的監測系統狀態,監測和追蹤侵入者等等。
2.2.WI-FI移動設備管理

GIS追蹤管理系統利用Ekahau定位系統讓醫院管理人員可以迅速、準確地通過WI-FI移動設備的追蹤,了解人員的分布動態情況,提高工作的調度效率。

展現種類,例如:按標簽號查詢、按貴重設備名稱查詢、按保管科室或者保管人等信息查詢;


利用此模塊醫院管理人員可以及時、準確地了解貴重設備的分布動態情況。
ü 防止高貴重設備的丟失,提高設備的使用效率,提高服務效率。
一旦發生緊急搶救和診治等情況,可以快速知道究竟在何處能立即就近找到可用的輪椅病床、手術 包、輸液泵、牽引器等醫療儀器和設備。


展現種類,例如:按標簽號查詢、按貴重設備名稱查詢、按保管科室或者保管人等信息查詢;
2.4.重要病人管理


ü 減少患者之間、患者與醫護人員之間、醫務人員之間的交叉感染。
ü 加強對急癥危重病人的監控和管理,提供救護過程的效率;

對于佩戴了標簽的患者,當發生緊急情況時,病人可以通過觸發標簽上的呼叫按鈕進行緊急呼叫。呼叫后,呼叫信息會顯示到系統中,醫護人員可以在系統中查看到呼叫信息。并且可以通過點擊信息查看當前病人所處位置,進行及時的救護和治療。
2.6.垃圾運送車管理

醫療垃圾運送監控

對垃圾車的每次運行,系統會自動記錄運行路線、運行時間,并存入系統;管理員可以通過查看歷史軌跡的功能查看日志。
垃圾運送車預警
系統會實時監控垃圾車的位置,垃圾車必須在指定的運行區域內活動(如上圖粉紅色區域),如果垃圾車超出指定范圍的時候,系統會提示相應的管理員:垃圾車違規運行。
管理員登陸系統,進入【系統報警管理】-【垃圾車路徑報警管理】(如下圖)會查看到所有的違規記錄。記錄會顯示每次垃圾車超出預警區域的時間,以及再次回到預警區域的時間。

Ø 每當垃圾車進入一個節點的覆蓋區域,系統記錄經過某個節點;
Ø如果垃圾車進入非指定區域,或者從非指定區域進入,系統自動預警,垃圾車違規運行。
2.7.統計報表
系統提供強大的報表統計分析功能。利用iReport主流的開源WEB報表定制工具,可以根據客戶需求自定義各種相關的統計報表,并可以導出PDF或EXCLE文檔。
九、上海希華通訊科技有限公司
上海希華通訊科技有限公司是香港上市公司 —香港通訊集團HKC(股票代號:248)在內地的全資子公司,致力于提供系統解決方案,業務涉及通訊、計算機網絡、企業應用軟件、WIFI、RFID/AIDC等領域。
香港通訊集團HKC是Ekahau在亞太區的合作伙伴,上海希華通訊科技有限公司作為Ekahau中國大陸的唯一代理,全面負責Ekahau實時定位系統(RTLS)在中國地區的推廣和銷售,上海希華提供系統軟硬件產品、測試、安裝、客戶應用軟件的二次開發(中文版)、技術支持和培訓等工作。歡迎咨詢洽談,期待合作!
地址:上海市淮海東路45號東淮海國際大廈11層
聯系人:劉濤
手機:13816134029
電話:021-61702233-152
電郵:tliu@hkctechnology.com.cn
網址:http://www.hkctechnology.com.cn